XHOME
XHOME SÀI GÒN

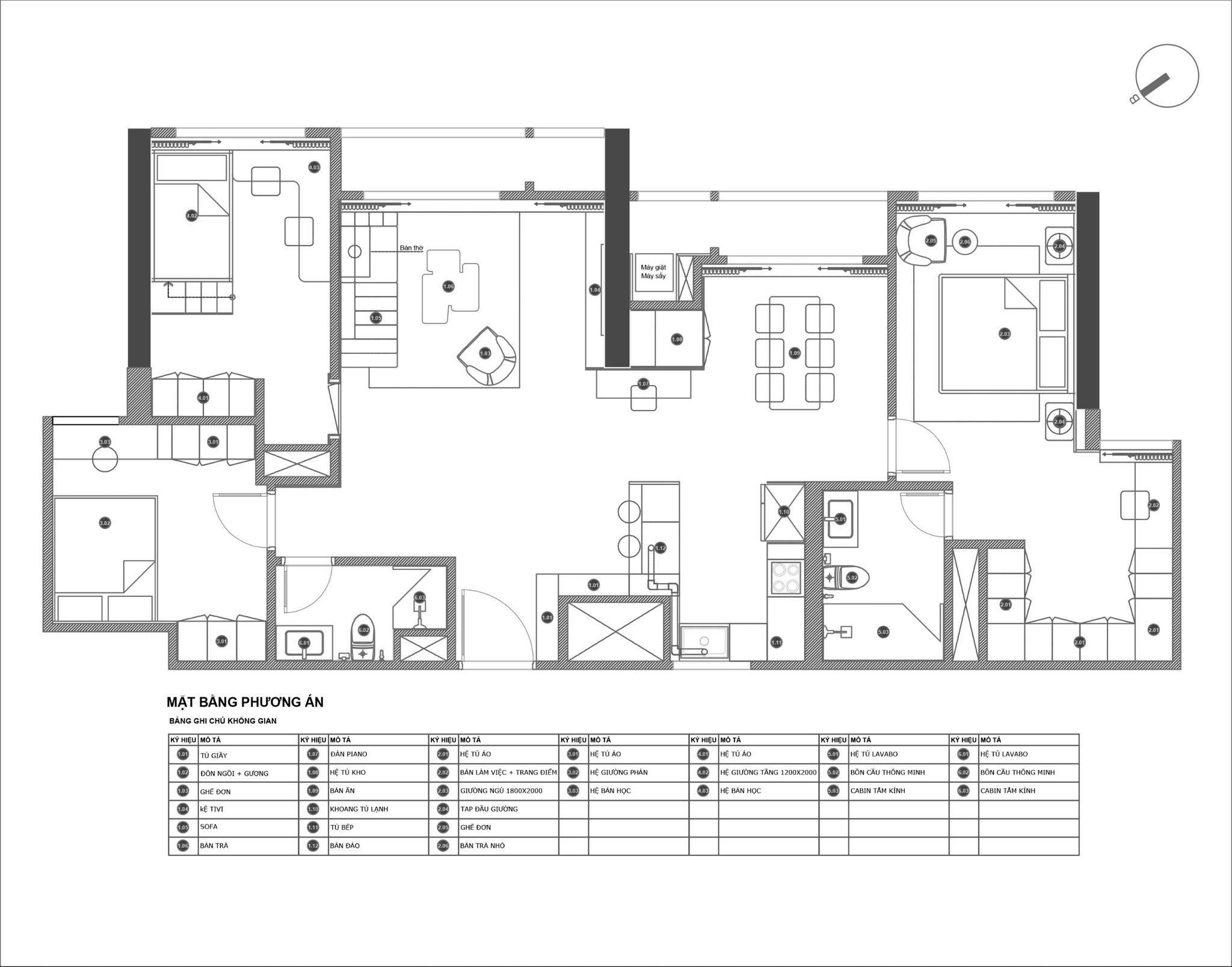
Thiết kế nội thất căn hộ Masteri West Heights 2 căn đập thông 125m2

Tìm kiếm

Thiết kế căn hộ Masteri West Heights 152m2 đập thông 2 căn tại Nam Từ Liêm, Hà Nội. Dự án được XHOME thiết kế nội thất mang phong cách Hiện đại sang trọng. Không gian rộng rãi, cách bố trí khoa học khéo léo, đảm bảo sự riêng tư và tiện nghi, mang đến trải nghiệm sống đẳng cấp và đầy cảm hứng cho gia chủ.

Thông tin dự án 2 căn hộ đập thông Masteri West Heights

Tên dự án:Masteri West Heights
Địa điểm:Nam Từ Liêm, Hà Nội
Loại hình:Căn hộ chung cư (Apartment)
Đơn vị:XHOME
Năm thực hiện:2025
Phong cách:Nội thất hiện đại sang trọng (Modern Luxury Style)
Diện tích nội thất:125m2
Công năng:Phòng khách, phòng bếp – ăn, 3 phòng ngủ, 2 WC
Vật liệu:Gói vật tư chất lượng cao
Ngân sách thiết kế và thi công:Liên hệ

Hình ảnh thiết kế căn hộ Masteri West Heights

Picture of XHOME Sai Gon Marketing Team

XHOME Sai Gon Marketing Team

XHOME Sai Gon Marketing Team là đội ngũ biên tập và chịu trách nhiệm nội dung cho website này. Chúng tôi tham khảo và nhận cố vấn chuyên môn từ đội ngũ Kiến Trúc Sư, Kỹ Sư, Nhà Thiết Kế nội thất giàu kinh nghiệm tại XHOME Sài Gòn, để mang đến những thông tin bổ ích nhất cho các khách hàng, đối tác và đọc giả.

Bình luận bài viết

Email của bạn sẽ không được hiển thị công khai. Các trường bắt buộc được đánh dấu *

NHẬN ƯU ĐÃI

Để lại thông tin nhận ưu đãi lên đến 100% chi phí thiết kếbáo giá chính xác nhất cho dự án của bạn.

ĐĂNG KÝ TƯ VẤN

Chúng tôi luôn dành món quà 1H tư vấn miễn phí để giúp khách hàng hiểu về quy trình – dịch vụ trước khi có thể hợp tác.